![]()
![]()
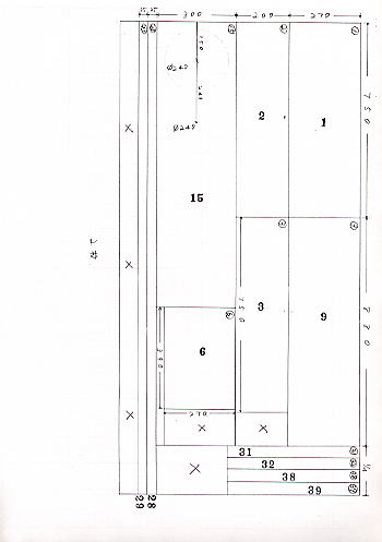
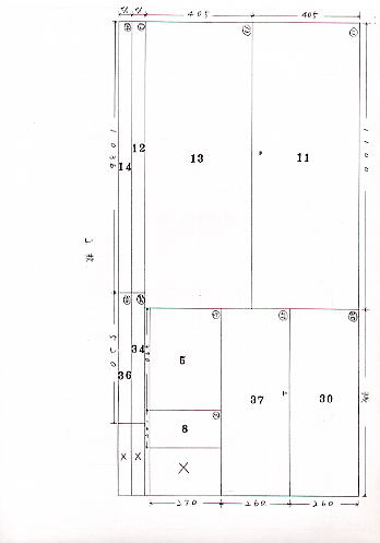
このページでは、箱船現用スピーカー、ラックの図面を挙げていく。
手書き図面なので大変見辛いが、どうかお許し願いたい。
![]()
先ずはスーパーネッシーから。
![]() |
![]() |
![]() |
![]() |
![]() |
![]() |
15mm厚サブロク合板9枚 SPターミナル T−100 ユニット FE−208ES×2 トゥイーター JA−0506II T−500A T−925A T−90A FT−90HG 等 |
![]() |
![]() |
![]() |
![]() |
![]() |
![]() |
![]() |
![]() |
21mm厚サブロク合板9枚 SPターミナル T−100 ユニット JBL E−145×2 他38cmウーファーユニット コイル 6mH〜12mH |
![]() |
![]() |
![]() |
![]() |
![]() |